Dessinez votre plan de maison ou d'appartement facilement
Menu
ArchiFacile
Dessiner
Versions
Aide
Forum
Plans
Plan de maison
Plan de cuisine
Plan de table
Plan de jardin
Schéma électrique
Rechercher un plan
Plan cadastral
Implantation de maison
Calcul production solaire
Bibliothèque d'objet
Connexion
Inscription gratuite
English
Español
Português
KFF
Utilise ArchiFacile 33.1 web
Les 3 plans de KFF
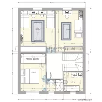
PLAN MAISON ETAGE
par
KFF
Détails
plan rdc maison 1
par
KFF
Détails
plan rdc maison
par
KFF
Détails