Dessinez votre plan de maison ou d'appartement facilement
Menu
ArchiFacile
Dessiner
Versions
Aide
Forum
Plans
Plan de maison
Plan de cuisine
Plan de table
Plan de jardin
Schéma électrique
Rechercher un plan
Plan cadastral
Implantation de maison
Calcul production solaire
Bibliothèque d'objet
Connexion
Inscription gratuite
English
Español
Português
jean1458
Utilise ArchiFacile 3.6
Les 2 plans publics de jean1458
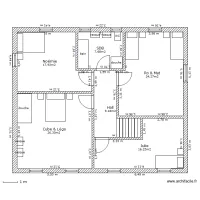
legocube 1er
par
jean1458
Détails
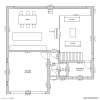
legocube RDC
par
jean1458
Détails
Les messages de jean1458
Bravo
Fermé
Le 02/06/2010 à 23:05 par jean1458