Dessinez votre plan de maison ou d'appartement facilement
Menu
ArchiFacile
Dessiner
Versions
Aide
Forum
Plans
Plan de maison
Plan de cuisine
Plan de table
Plan de jardin
Schéma électrique
Rechercher un plan
Plan cadastral
Implantation de maison
Calcul production solaire
Bibliothèque d'objet
Connexion
Inscription gratuite
English
Español
Português
stanBud
Utilise ArchiFacile 39.6 web
Les 3 plans de stanBud
P66_9-cuisine en ligne
par
stanBud
Détails
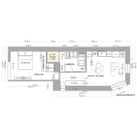
Piekna 66 m 9
par
stanBud
Détails
P66_9
par
stanBud
Détails