Dessinez votre plan de maison ou d'appartement facilement
Menu
ArchiFacile
Dessiner
Versions
Aide
Forum
Plans
Plan de maison
Plan de cuisine
Plan de table
Plan de jardin
Schéma électrique
Rechercher un plan
Plan cadastral
Implantation de maison
Calcul production solaire
Bibliothèque d'objet
Connexion
Inscription gratuite
English
Español
Português
marmotta
Utilise ArchiFacile 33.4 wk
Les 40 plans de marmotta
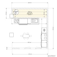
cuisine seule 0724
par
marmotta
Détails
salle de bain 1
par
marmotta
Détails