Dessinez votre plan de maison ou d'appartement facilement
Menu
ArchiFacile
Dessiner
Versions
Aide
Forum
Plans
Plan de maison
Plan de cuisine
Plan de table
Plan de jardin
Schéma électrique
Rechercher un plan
Plan cadastral
Implantation de maison
Calcul production solaire
Bibliothèque d'objet
Connexion
Inscription gratuite
English
Español
Português
krinov
Utilise ArchiFacile 33.3 wk
Les 122 plans publics de krinov
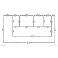
FREDO
par
krinov
Détails
kabil1
par
krinov
Détails
« Précédent
1
2
3
4