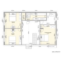
Plan masse Emma

Plan de 10 pièces et 56 m2.

Plan masse Emma. Plan de 10 pièces et 56 m2

 

Détails du plan

  • Plan commencé le 22/09/25 par evfp
  • Modifié le 22/09/25 par evfp
  • Partage : Utilisation

Mots clés

A construire A louer A rénover A vendre Appartement Atelier Bureau Chez moi Coupe Duplex Electricité Extension Facade Ferme Garage Jardin Loft Magasin Maison Piscine
  • Liste des pièces

    • Réserve
    • Salle de pause
    • Bureaux
    • Réserve PT
    • Z MAG
    • Jeunesse
    • Jeunesse
    • Jeu/Jouet
  • Liste des objets

    Nom de l'objet Nombre
    Bibliothèque 7
    Bureau 100 X 50 cm 4
    Bureau 180 X 140 cm 1
    Table de bureau 18

    Lien vers ce plan

    Lien pour partager le plan Plan masse Emma


    Image du plan

    Copier et coller le code ci dessous


    Partagez ce plan


    Vous aimez ce plan ?

    Cliquez sur J'aime et gagnez des fonctionnalités



    Plans de 10 pièces et de 50 à 60 m2

    PERQUIS STUP 12988

    par giagia59

    Détails

    PERQUIS STUP 12988

    MAISON 2

    par JJDUT

    Détails

    MAISON 2

    Val des pins

    par CSDE

    Détails

    Val des pins

    Plan masse Emma

    par evfp

    Détails

    Plan masse Emma

    BI 30628

    par EIDS_02

    Détails

    BI 30628

    Annexe Tenderie mezzanine meubles

    par bng453

    Détails

    Annexe Tenderie mezzanine meubles

    Appart TE

    par EEEAAA

    Détails

    Appart TE

    Voir tout les plans de 10 pièces et de 50 à 60 m2


    Plans de 10 pièces

    plan 1 romarin

    par roncinette

    Détails

    plan 1 romarin

    Plan131225

    par Bibipilou

    Détails

    Plan131225

    Marilles

    par lespec007

    Détails

    Marilles

    maison de mes reves 3

    par STEF TEP

    Détails

    maison de mes reves 3

    maison de mes reves 2

    par STEF TEP

    Détails

    maison de mes reves 2

    350602602

    par corentinhue

    Détails

    350602602

    Plan 324 Seraing

    par Nelsonbissot

    Détails

    Plan 324 Seraing

    INVEST V1

    par LibaudPerrine

    Détails

    INVEST V1

    Voir tout les plans de 10 pièces


    Plans de 50 à 60 m2

    Appart Lisfranc

    par ArthurEcoffet

    Détails

    Appart Lisfranc

    Dufour alternative 2

    par cdmaz

    Détails

    Dufour alternative 2

    MAISON MILOU

    par Alex1313013

    Détails

    MAISON MILOU

    studio

    par faziiil

    Détails

    studio

    Natacha plan

    par jeremy 16

    Détails

    Natacha  plan

    Appartement des Bibous

    par Bibous93

    Détails

    Appartement des Bibous

    Paul Fort 2

    par eva272

    Détails

    Paul Fort 2

    Dalle raccordements

    par fredcolomba

    Détails

    Dalle raccordements

    Voir tout les plans de 50 à 60 m2