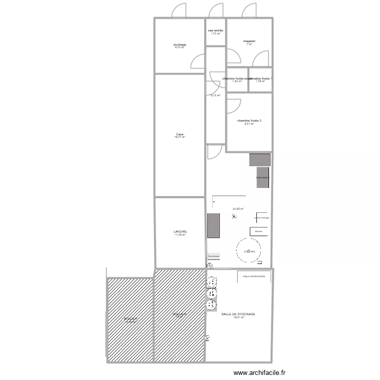
labo avant extention
Plan de 13 et 137 m²

Détails du plan
- Plan commencé le 19/02/2026 à 15:38 par desDomainesGAEC
- Modifié le 19/02/2026 à 15:53 par desDomainesGAEC
- Partage : Lecture
Mots clés
Liste des pièces
Liste des objets
| Nom de l'objet | Nombre |
|---|---|
| Barrate | 1 |
| Chauffe eau | 2 |
| CUVE 650L | 1 |
| Lave linge hublot | 1 |
| Poteau béton | 2 |
| presse fromage | 1 |
| Sèche linge | 1 |
| TABLE D'EGOUTTAGE | 2 |
| TABLE INOX 1 | 2 |
| Vanne 4 voies | 3 |
Lien vers ce plan
Lien pour partager le plan labo avant extention
Image du plan
Copier et coller le code ci dessous
Partagez ce plan
Vous aimez ce plan ?
Cliquez sur J'aime et gagnez des fonctionnalités
Plans de 13 pièces et de 130 à 150 m2
Voir tout les plans de 13 pièces et de 130 à 150 m2
Plans de 13 pièces
Voir tout les plans de 13 pièces
Plans de 130 à 150 m2
Voir tout les plans de 130 à 150 m2