MOLINI TOITURE APPART
Plan de 8 et 136 m²

Description
AMENAGEMENT GRENIER MOLINI
Détails du plan
- Plan commencé le 23/03/2026 à 19:44 par laurePlan1
- Modifié le 23/03/2026 à 21:01 par laurePlan1
- Partage : Utilisation
Mots clés
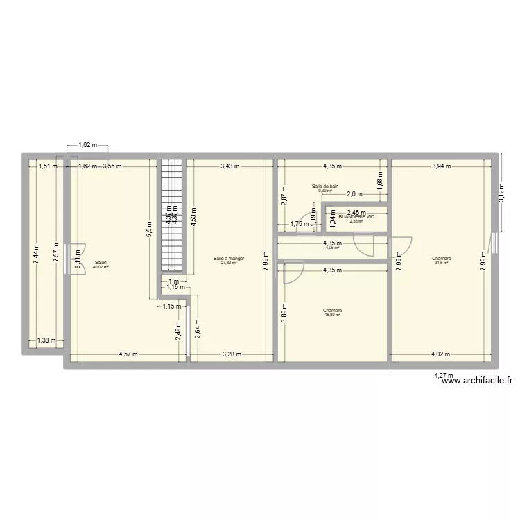
Liste des pièces
- Chambre
- BUANDERIE WC
- Salle de bain
- Chambre
- Salle à manger
- Salon
Liste des objets
| Nom de l'objet | Nombre |
|---|---|
| Escalier droit | 1 |
Lien vers ce plan
Lien pour partager le plan MOLINI TOITURE APPART
Image du plan
Copier et coller le code ci dessous
Partagez ce plan
Vous aimez ce plan ?
Cliquez sur J'aime et gagnez des fonctionnalités
Plans de 8 pièces et de 130 à 150 m2
Voir tout les plans de 8 pièces et de 130 à 150 m2
Plans de 8 pièces
Voir tout les plans de 8 pièces
Plans de 130 à 150 m2
Voir tout les plans de 130 à 150 m2