Locaux Villemolaque V2
Plan de 4 pièces et 100 m²

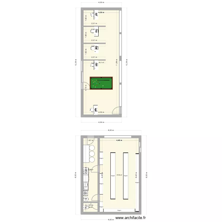
Détails du plan
- Plan commencé le 24/02/2026 à 16:41 par MathieuESPINET
- Modifié le 24/02/2026 à 17:09 par MathieuESPINET
- Partage : Lecture
Mots clés
Liste des pièces
Liste des objets
| Nom de l'objet | Nombre |
|---|---|
| Billard | 1 |
| Bureau 100 X 50 cm | 5 |
| Chauffe eau | 1 |
| Etagère redimenssionnable | 7 |
| Évier 1 bac avec meuble | 1 |
| Four micro ondes | 1 |
| Meuble cuisine 1 tiroir 2 portes | 2 |
| Réfrigérateur | 1 |
| Table 1 coté | 1 |
| WC standard | 1 |
Lien vers ce plan
Lien pour partager le plan Locaux Villemolaque V2
Image du plan
Copier et coller le code ci dessous
Partagez ce plan
Vous aimez ce plan ?
Cliquez sur J'aime et gagnez des fonctionnalités
Plans de 4 pièces et de 90 à 110 m2
Voir tout les plans de 4 pièces et de 90 à 110 m2
Plans de 4 pièces
Voir tout les plans de 4 pièces
Plans de 90 à 110 m2
Voir tout les plans de 90 à 110 m2