Le sept 4 restaurant
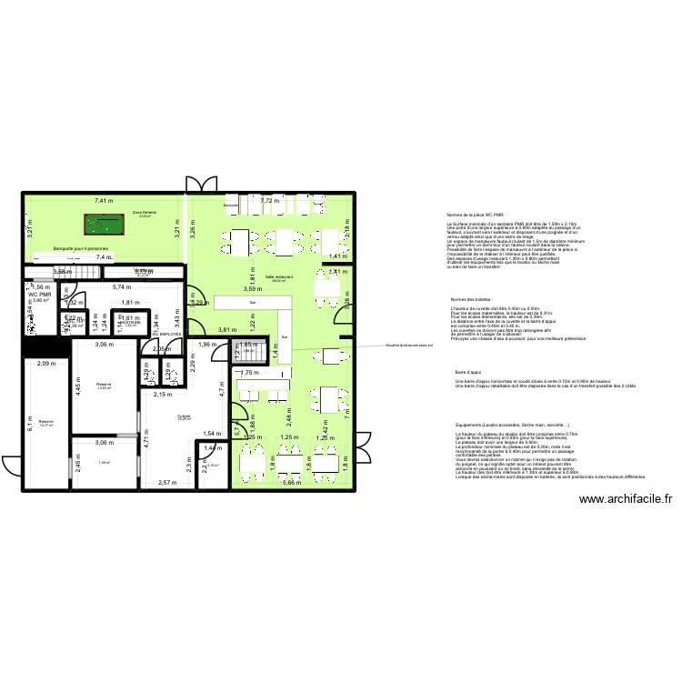
Plan de 17 et 200 m²

Détails du plan
- Plan commencé le 22/04/2026 à 16:17 par DPS 74
- Modifié le 22/04/2026 à 16:23 par DPS 74
- Partage : Utilisation
Mots clés
Liste des pièces
- Reserve
- Reserve
- WC PMR
- WC H/F
- WC EMPLOYÉS
- Cuisine
- VESTIAIRE
- Vestiaire
- Salle restaurant
- Zone Detente
Liste des objets
| Nom de l'objet | Nombre |
|---|---|
| Texte | 4 |
| Banquette clic-clac 3 places | 7 |
| Bar | 2 |
| Barre PMR | 1 |
| Billard | 1 |
| Chaise | 4 |
| Chaise | 2 |
| Escalier droit | 2 |
| Etagère redimenssionnable | 4 |
| Lave main d'angle | 1 |
| Table 2 pers. 74 x 74 cm | 1 |
| Table 4 - 6 pers. 80 x 125 cm | 8 |
| Téléviseur | 1 |
| WC standard | 4 |
Lien vers ce plan
Lien pour partager le plan Le sept 4 restaurant
Image du plan
Copier et coller le code ci dessous
Partagez ce plan
Vous aimez ce plan ?
Cliquez sur J'aime et gagnez des fonctionnalités
Plans de 17 pièces et de 190 à 210 m2
Voir tout les plans de 17 pièces et de 190 à 210 m2
Plans de 17 pièces
Voir tout les plans de 17 pièces
Plans de 190 à 210 m2
Voir tout les plans de 190 à 210 m2