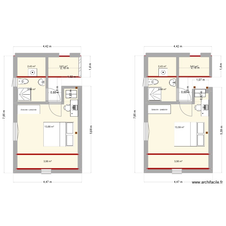
Chambre 1 étage test2
Plan de 0 pièce et 0 m2.

Détails du plan
- Plan commencé le 12/01/2026 à 07:57 par RenaudMingat
- Modifié le 27/01/2026 à 16:58 par RenaudMingat
- Partage : Utilisation
Mots clés
Liste des pièces
Liste des objets
| Nom de l'objet | Nombre |
|---|---|
| Armoire - penderie 150 cm | 2 |
| Bureau 100 X 50 cm | 2 |
| Escalier droit | 2 |
| Lavabo | 2 |
| Lave linge hublot | 2 |
| Lit queen size | 2 |
| Poteau bois | 5 |
| Receveur douche | 2 |
| WC standard | 2 |
Lien vers ce plan
Lien pour partager le plan Chambre 1 étage test2
Image du plan
Copier et coller le code ci dessous
Partagez ce plan
Vous aimez ce plan ?
Cliquez sur J'aime et gagnez des fonctionnalités
Plans de 0 pièce et de 45 à 55 m2
Voir tout les plans de 0 pièce et de 45 à 55 m2
Plans de 0 pièce
Voir tout les plans de 0 pièce
Plans de 45 à 55 m2
Voir tout les plans de 45 à 55 m2