rdc wc 2 après commission
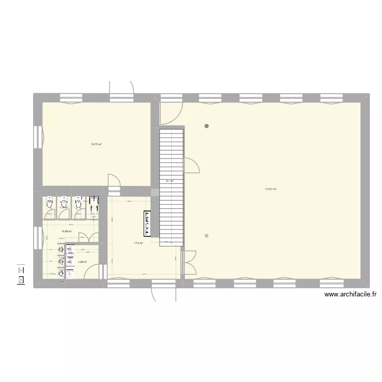
Plan de 7 pièces et 188 m²

Détails du plan
- Plan commencé le 08/03/2026 à 15:42 par yossidawidowicz
- Modifié le 09/03/2026 à 14:26 par yossidawidowicz
- Partage : Utilisation
Mots clés
Liste des pièces
Liste des objets
| Nom de l'objet | Nombre |
|---|---|
| Escalier droit | 1 |
| Fauteuil roulant | 1 |
| Lave main | 1 |
| Meuble 1 lavabo integré | 3 |
| Meuble 2 lavabos | 1 |
| Poteau béton | 2 |
| Poteau métal | 1 |
| Poubelle | 2 |
| Tableau électrique Basse Tension | 1 |
| Urinoir | 3 |
| WC standard | 3 |
Lien vers ce plan
Lien pour partager le plan rdc wc 2 après commission
Image du plan
Copier et coller le code ci dessous
Partagez ce plan
Vous aimez ce plan ?
Cliquez sur J'aime et gagnez des fonctionnalités
Plans de 7 pièces et de 180 à 200 m2
Voir tout les plans de 7 pièces et de 180 à 200 m2
Plans de 7 pièces
Voir tout les plans de 7 pièces
Plans de 180 à 200 m2
Voir tout les plans de 180 à 200 m2