Tabellion Bel étage Eau Elec Chauffage
Plan de 0 pièce et 0 m2.

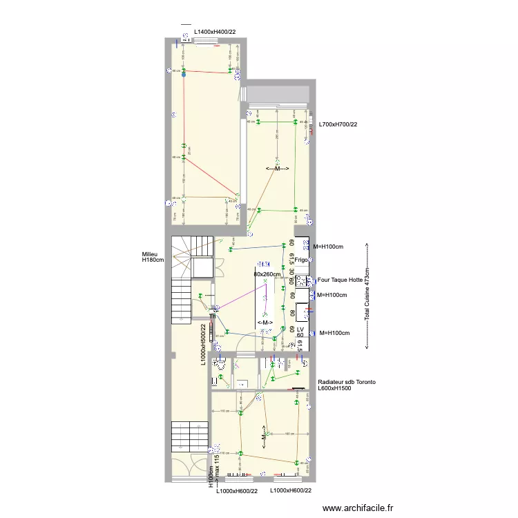
Détails du plan
- Plan commencé le 01/07/2020 à 19:21 par avdh
- Modifié le 01/07/2020 à 19:21 par avdh
- Partage : Utilisation
Mots clés
Liste des pièces
Aucune pièce n'a été créé sur ce plan.
Liste des objets
| Nom de l'objet | Nombre |
|---|---|
| Texte | 30 |
| Chaudière à Gaz | 1 |
| Eclairage applique | 2 |
| Eclairage plafond | 7 |
| Eclairage spot | 25 |
| Escalier demi tournant | 1 |
| Escalier droit | 3 |
| Interphone | 1 |
| Interrupteur | 12 |
| Interrupteur va et vient | 1 |
| Lave main | 1 |
| Meuble 1 lavabo integré | 1 |
| Plaque électrique avec meuble | 1 |
| Prise | 18 |
| Prise haute | 13 |
| Radiateur à inertie 2500W | 5 |
| Sèche-serviettes électrique à inertie 1000 W | 1 |
| VMC bouche d'extraction | 3 |
| WC suspendu | 1 |
Lien vers ce plan
Lien pour partager le plan Tabellion Bel étage Eau Elec Chauffage
Image du plan
Copier et coller le code ci dessous
Partagez ce plan
Vous aimez ce plan ?
Cliquez sur J'aime et gagnez des fonctionnalités