RDC Cessange
Plan de 0 pièce et 0 m2.

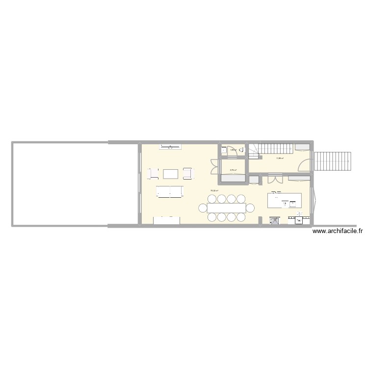
Détails du plan
- Plan commencé le 06/02/2026 à 19:54 par FatimaAddad
- Modifié le 06/02/2026 à 20:27 par FatimaAddad
- Partage : Lecture
Mots clés
Liste des pièces
Liste des objets
| Nom de l'objet | Nombre |
|---|---|
| Buffet | 1 |
| Canapé 3 places | 1 |
| Chaise haute bar | 2 |
| Congélateur armoire 200 L | 2 |
| Escalier droit | 1 |
| Escalier quart tournant | 1 |
| Evier 1 vasque | 2 |
| Fauteuil 1 place | 2 |
| Four | 1 |
| Four micro ondes | 1 |
| Hotte murale | 1 |
| Ilot central | 1 |
| Lave vaisselle 12 couverts | 1 |
| Meuble cuisine haut 80 cm | 4 |
| Piano de cuisson 5 foyers | 1 |
| Table 4 cotés | 1 |
| Table basse | 1 |
| Téléviseur avec meuble | 1 |
| WC suspendu | 1 |
Lien vers ce plan
Lien pour partager le plan RDC Cessange
Image du plan
Copier et coller le code ci dessous
Partagez ce plan
Vous aimez ce plan ?
Cliquez sur J'aime et gagnez des fonctionnalités
Plans de 0 pièce et de 80 à 100 m2
Voir tout les plans de 0 pièce et de 80 à 100 m2
Plans de 0 pièce
Voir tout les plans de 0 pièce
Plans de 80 à 100 m2
Voir tout les plans de 80 à 100 m2