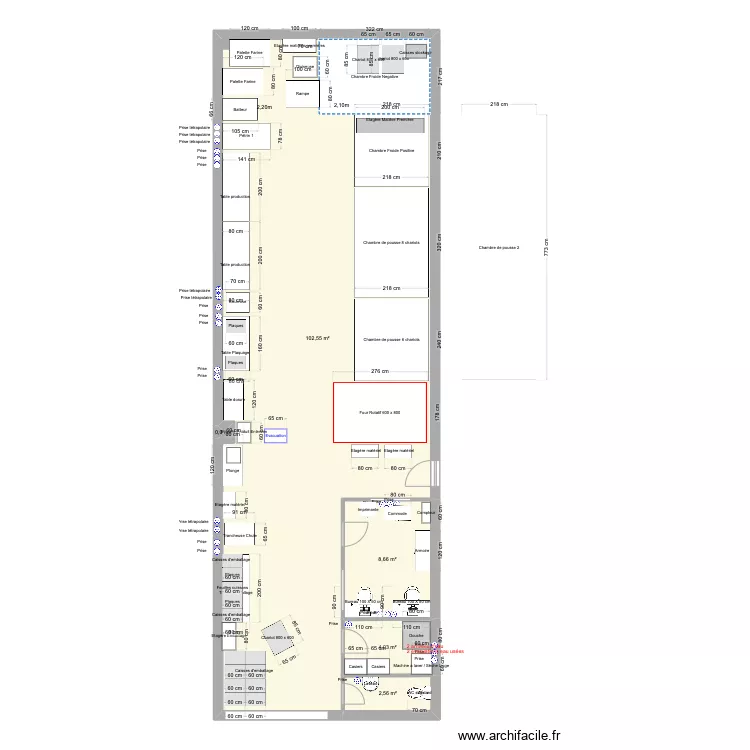
Montreuil 120m2 - 23.03.24
Plan de

Détails du plan
- Plan commencé le 23/03/2024 à 13:15 par LesReconvertis
- Modifié le 28/03/2024 à 20:43 par LesReconvertis
- Partage : Utilisation
Mots clés
Liste des pièces
Aucune pièce n'a été créé sur ce plan.
Liste des objets
| Nom de l'objet | Nombre |
|---|---|
| Texte | 3 |
| Armoire | 3 |
| Batteur | 1 |
| Bouleuse | 1 |
| Bureau 100 X 50 cm | 2 |
| Caisses Livraison | 18 |
| Etagère | 3 |
| Four | 1 |
| Lavabo | 1 |
| Pétrin | 1 |
| Plonge | 1 |
| Prise | 21 |
| Prise tétrapolaire | 7 |
| Rectangle | 12 |
| Table dorure | 1 |
| Table pétrin | 3 |
| WC standard | 1 |
Lien vers ce plan
Lien pour partager le plan Montreuil 120m2 - 23.03.24
Image du plan
Copier et coller le code ci dessous
Partagez ce plan
Vous aimez ce plan ?
Cliquez sur J'aime et gagnez des fonctionnalités