RIVAILLER ETAGE PC
Plan de

Détails du plan
- Plan commencé le 10/12/2025 à 11:05 par Romain RF
- Modifié le 11/12/2025 à 07:53 par Romain RF
- Partage : Utilisation
Mots clés
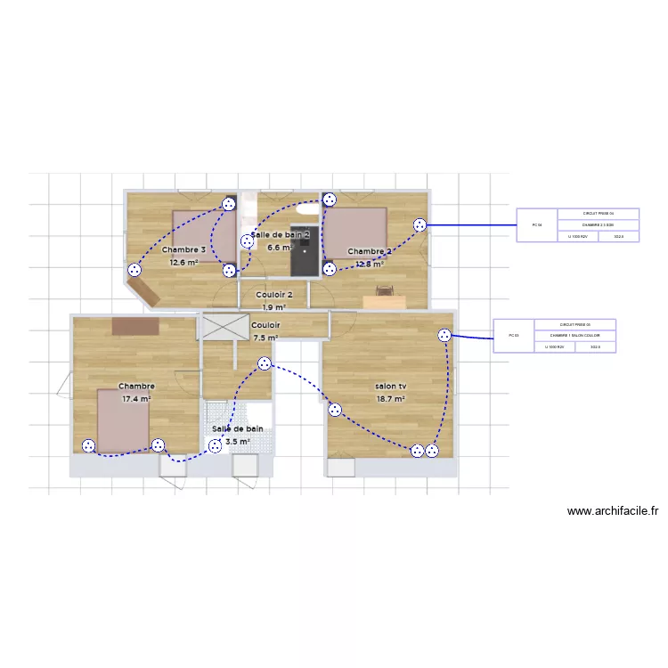
Liste des pièces
Aucune pièce n'a été créé sur ce plan.
Liste des objets
| Nom de l'objet | Nombre |
|---|---|
| Cartouche 1 | 2 |
| Prise | 15 |
Lien vers ce plan
Lien pour partager le plan RIVAILLER ETAGE PC
Image du plan
Copier et coller le code ci dessous
Partagez ce plan
Vous aimez ce plan ?
Cliquez sur J'aime et gagnez des fonctionnalités