RDC Lucas et Noemie
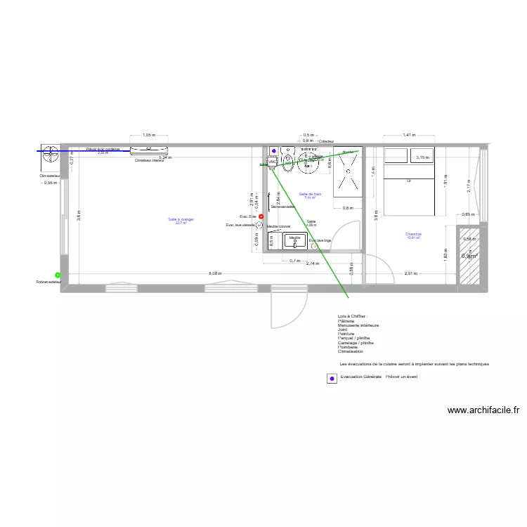
Plan de 4 et 41 m²

Détails du plan
- Plan commencé le 21/03/2026 à 10:19 par LaurentBICHE
- Modifié le 28/04/2026 à 16:52 par LaurentBICHE
- Partage : Utilisation
Mots clés
Liste des pièces
- Chambre
- Salle à manger
Liste des objets
| Nom de l'objet | Nombre |
|---|---|
| Cercle | 2 |
| Chauffe eau | 1 |
| Collecteur 6 départs | 1 |
| Meuble 1 lavabo integré | 1 |
| Prise lave linge | 1 |
| Prise lave vaisselle | 1 |
| Receveur douche extra plat | 1 |
| Sèche-serviettes électrique à inertie 1000 W | 1 |
| WC standard | 1 |
Lien vers ce plan
Lien pour partager le plan RDC Lucas et Noemie
Image du plan
Copier et coller le code ci dessous
Partagez ce plan
Vous aimez ce plan ?
Cliquez sur J'aime et gagnez des fonctionnalités
Plans de 4 pièces et de 35 à 45 m2
Voir tout les plans de 4 pièces et de 35 à 45 m2
Plans de 4 pièces
Voir tout les plans de 4 pièces
Plans de 35 à 45 m2
Voir tout les plans de 35 à 45 m2