LEON SDB Adaptation
Plan de

Description
Adaptation
Détails du plan
- Plan commencé le 20/02/2025 à 16:42 par TESTONVIGNE 09
- Modifié le 20/02/2025 à 16:42 par TESTONVIGNE 09
- Partage : Utilisation
Mots clés
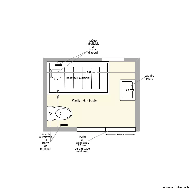
Liste des pièces
Aucune pièce n'a été créé sur ce plan.
Liste des objets
| Nom de l'objet | Nombre |
|---|---|
| Texte | 4 |
| Chaise | 1 |
| Meuble 1 lavabo integré | 1 |
| Porte de garage | 1 |
| Receveur douche | 1 |
| WC standard | 1 |
Lien vers ce plan
Lien pour partager le plan LEON SDB Adaptation
Image du plan
Copier et coller le code ci dessous
Partagez ce plan
Vous aimez ce plan ?
Cliquez sur J'aime et gagnez des fonctionnalités