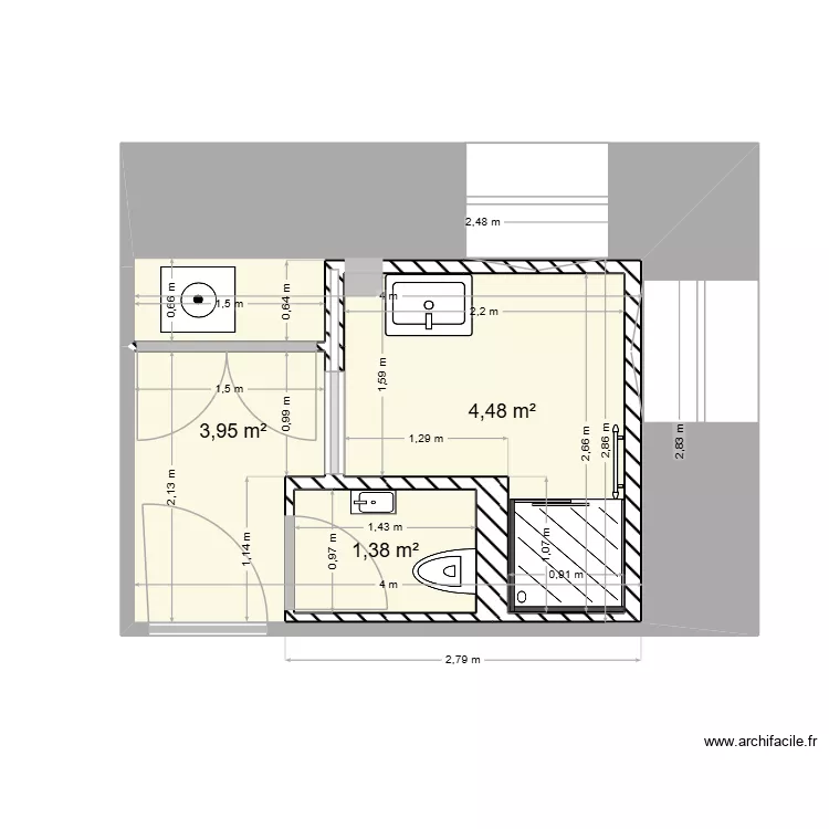
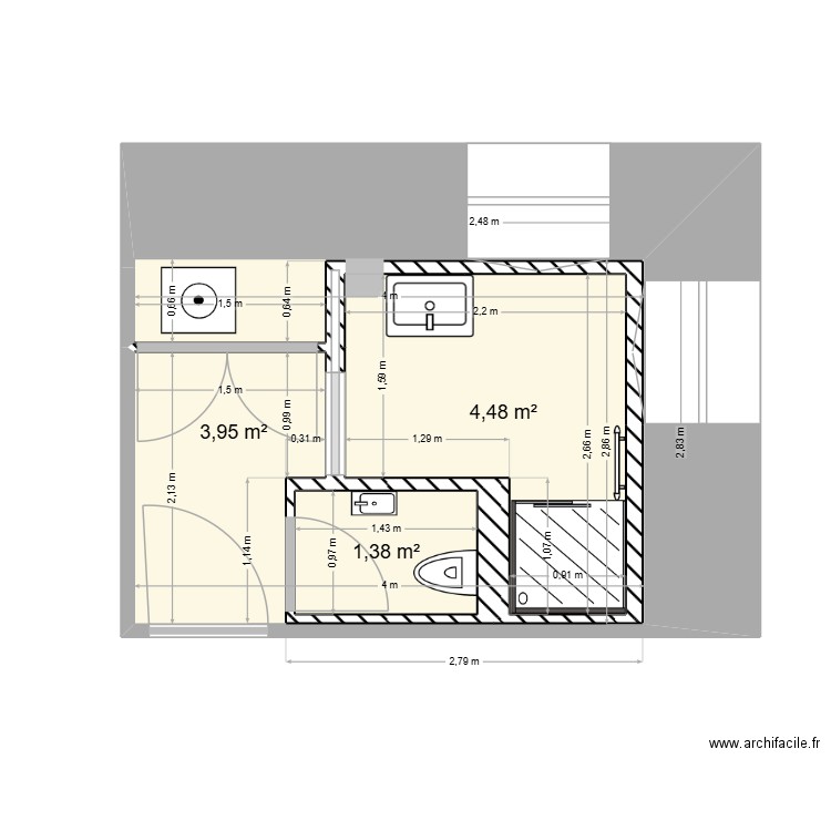
Arba SDB2 Zoom Vlast4
Plan de

Détails du plan
- Plan commencé le 12/10/2025 à 19:40 par Rope2A
- Modifié le 22/10/2025 à 21:29 par Rope2A
- Partage : Utilisation
Mots clés
Liste des pièces
Aucune pièce n'a été créé sur ce plan.
Liste des objets
| Nom de l'objet | Nombre |
|---|---|
| Cabine douche | 1 |
| Lave linge hublot | 1 |
| Lave main | 1 |
| Meuble 1 lavabo integré | 1 |
| Poteau béton | 1 |
| Sèche-serviettes électrique à inertie 1000 W | 1 |
| WC suspendu | 1 |
Lien vers ce plan
Lien pour partager le plan Arba SDB2 Zoom Vlast4
Image du plan
Copier et coller le code ci dessous
Partagez ce plan
Vous aimez ce plan ?
Cliquez sur J'aime et gagnez des fonctionnalités