AMAO MARKET : Cheminement interieur vF v2
Plan de 1 et 32 m²

Description
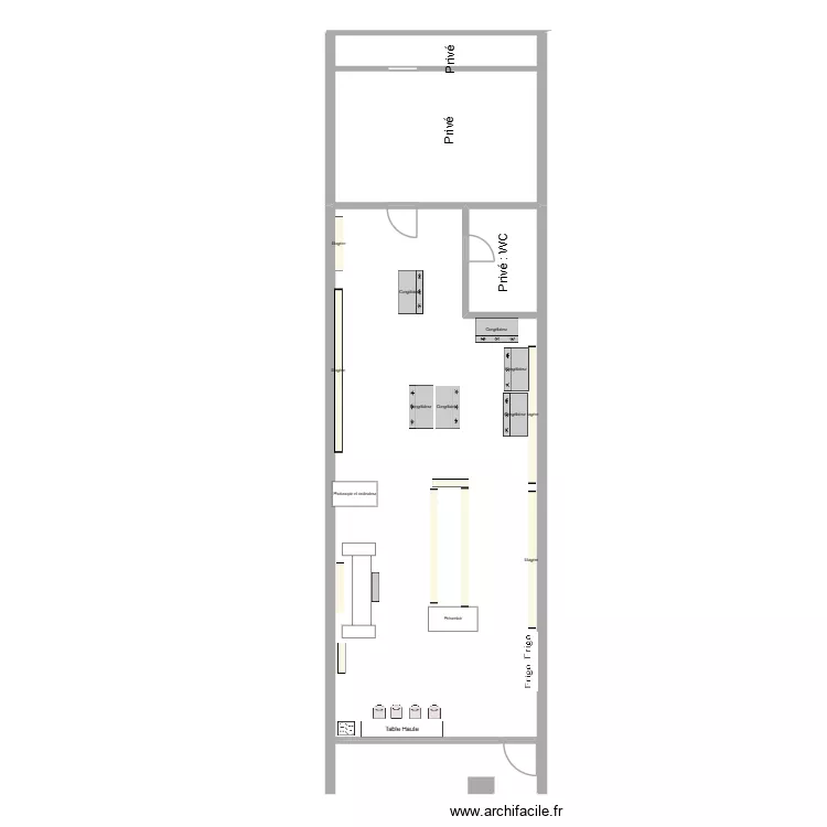
Plan intérieur
Détails du plan
- Plan commencé le 19/04/2026 à 15:11 par Mareshall abo
- Modifié le 19/04/2026 à 15:23 par Mareshall abo
- Partage : Modification
Mots clés
Liste des pièces
Liste des objets
| Nom de l'objet | Nombre |
|---|---|
| Texte | 3 |
| Bar | 3 |
| Buffet | 1 |
| Chaise haute bar | 4 |
| Congélateur coffre 200 L | 6 |
| Etagère redimenssionnable | 10 |
| Four micro ondes | 1 |
| Réfrigérateur | 2 |
| Table basse | 2 |
Lien vers ce plan
Lien pour partager le plan AMAO MARKET : Cheminement interieur vF v2
Image du plan
Copier et coller le code ci dessous
Partagez ce plan
Vous aimez ce plan ?
Cliquez sur J'aime et gagnez des fonctionnalités
Plans de 1 pièce et de 25 à 35 m2
Voir tout les plans de 1 pièce et de 25 à 35 m2
Plans de 1 pièce
Voir tout les plans de 1 pièce
Plans de 25 à 35 m2
Voir tout les plans de 25 à 35 m2