
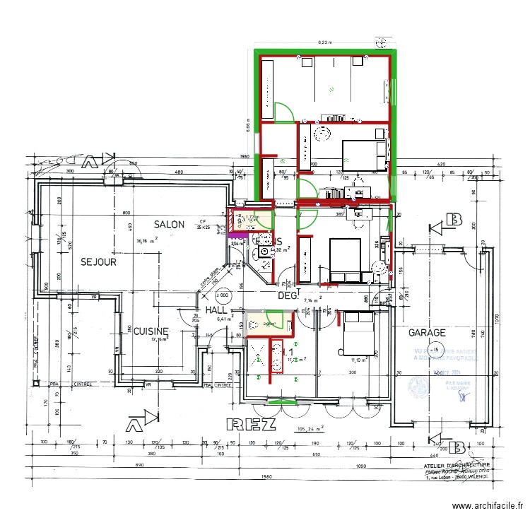
Projet d'extension d'environ 30 m2 pour créer 2 chambres, 1 buanderie et déplacer une sde
| Nom de l'objet | Nombre |
|---|---|
| Bibliothèque | 3 |
| Climatiseur bloc exterieur | 1 |
| Climatiseur Split interieur | 3 |
| Eclairage plafond | 6 |
| Eclairage spot | 5 |
| Etagère redimenssionnable | 1 |
| Fauteuil crapaud | 2 |
| Interrupteur | 5 |
| Lave main | 1 |
| Lit queen size | 1 |
| Prise | 14 |
| Prise RJ45 | 3 |
| Prise lave linge | 1 |
| Receveur douche extra plat | 1 |
| Refrigerateur congelateur | 1 |
| Sèche linge | 1 |
| WC suspendu | 2 |
Lien pour partager le plan PlanMaisonAvecExtensionAvecCotationsExt
Copier et coller le code ci dessous
Cliquez sur J'aime et gagnez des fonctionnalités
Voir tout les plans de 0 pièce et de -0 à 10 m2
Voir tout les plans de 0 pièce
Voir tout les plans de -0 à 10 m2