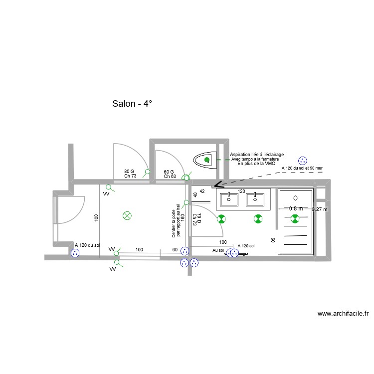
Hall-SB-WC - 4°
Plan de 0 pièce et 0 m2.

Détails du plan
- Plan commencé le 10/02/2026 à 13:49 par Batifoal
- Modifié le 10/02/2026 à 13:49 par Batifoal
- Partage : Utilisation
Mots clés
Liste des pièces
Liste des objets
| Nom de l'objet | Nombre |
|---|---|
| Texte | 23 |
| Eclairage applique | 1 |
| Eclairage plafond | 1 |
| Eclairage spot | 3 |
| Interrupteur | 6 |
| Meuble 2 lavabos | 1 |
| Meuble tiroir | 1 |
| Prise | 7 |
| Receveur douche | 1 |
| Sèche-serviettes électrique à inertie 1000 W | 1 |
| VMC | 1 |
| WC suspendu | 1 |
Lien vers ce plan
Lien pour partager le plan Hall-SB-WC - 4°
Image du plan
Copier et coller le code ci dessous
Partagez ce plan
Vous aimez ce plan ?
Cliquez sur J'aime et gagnez des fonctionnalités
Plans de 0 pièce et de 5 à 15 m2
Voir tout les plans de 0 pièce et de 5 à 15 m2
Plans de 0 pièce
Voir tout les plans de 0 pièce
Plans de 5 à 15 m2
Voir tout les plans de 5 à 15 m2