ETAGE DRAVEIL 26 09 2025 - PLANCHER CHAUFFANT
Plan de

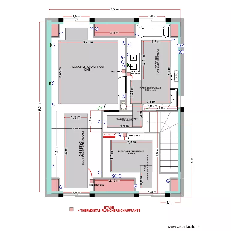
Détails du plan
- Plan commencé le 29/09/2025 à 15:57 par erdal93
- Modifié le 29/09/2025 à 16:57 par erdal93
- Partage : Utilisation
Mots clés
Liste des pièces
Aucune pièce n'a été créé sur ce plan.
Liste des objets
| Nom de l'objet | Nombre |
|---|---|
| Texte | 12 |
| Baignoire îlot rectangulaire | 1 |
| Cercle | 1 |
| Climatiseur Split interieur | 1 |
| Eclairage applique | 3 |
| Eclairage plafond | 7 |
| Escalier quart tournant | 1 |
| Interrupteur | 3 |
| Meuble 2 lavabos | 1 |
| Prise | 20 |
| Prise lave linge | 1 |
| Prise réseau RJ45 | 2 |
| Prise sèche linge | 1 |
| Prise TV | 2 |
| Prise volet roulant | 4 |
| Receveur douche | 1 |
| Rectangle | 39 |
| Sèche-serviettes électrique à inertie 1000 W | 1 |
| WC suspendu | 1 |
Lien vers ce plan
Lien pour partager le plan ETAGE DRAVEIL 26 09 2025 - PLANCHER CHAUFFANT
Image du plan
Copier et coller le code ci dessous
Partagez ce plan
Vous aimez ce plan ?
Cliquez sur J'aime et gagnez des fonctionnalités