Suite parentale
Plan de

Détails du plan
- Plan commencé le 21/09/2025 à 11:25 par KelianGutierrez
- Modifié le 21/09/2025 à 12:28 par KelianGutierrez
- Partage : Utilisation
Mots clés
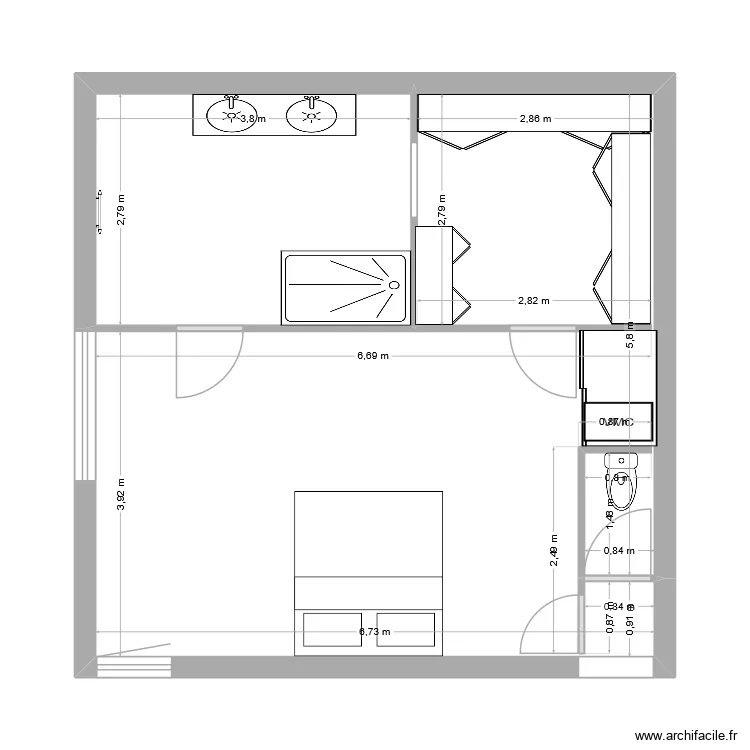
Liste des pièces
Aucune pièce n'a été créé sur ce plan.
Liste des objets
| Nom de l'objet | Nombre |
|---|---|
| Armoire portes coulissantes | 1 |
| Armoire portes pliantes | 3 |
| Lit King Size | 1 |
| Receveur douche | 1 |
| Sèche-serviettes électrique à inertie 1000 W | 1 |
| VMC caisson | 1 |
| WC standard | 1 |
Lien vers ce plan
Lien pour partager le plan Suite parentale
Image du plan
Copier et coller le code ci dessous
Partagez ce plan
Vous aimez ce plan ?
Cliquez sur J'aime et gagnez des fonctionnalités