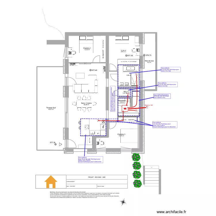
Viuz - RDC Bas - VMC
Plan de 12 et 132 m²

Description
Modification porte d'entrée et SDB avec doublage réseaux d'eau
Détails du plan
- Plan commencé le 18/02/2026 à 08:55 par ECI E
- Modifié le 18/02/2026 à 09:28 par ECI E
- Partage : Utilisation
Mots clés
Liste des pièces
Liste des objets
Lien vers ce plan
Lien pour partager le plan Viuz - RDC Bas - VMC
Image du plan
Copier et coller le code ci dessous
Partagez ce plan
Vous aimez ce plan ?
Cliquez sur J'aime et gagnez des fonctionnalités
Plans de 12 pièces et de 120 à 140 m2
Voir tout les plans de 12 pièces et de 120 à 140 m2
Plans de 12 pièces
Voir tout les plans de 12 pièces
Plans de 120 à 140 m2
Voir tout les plans de 120 à 140 m2