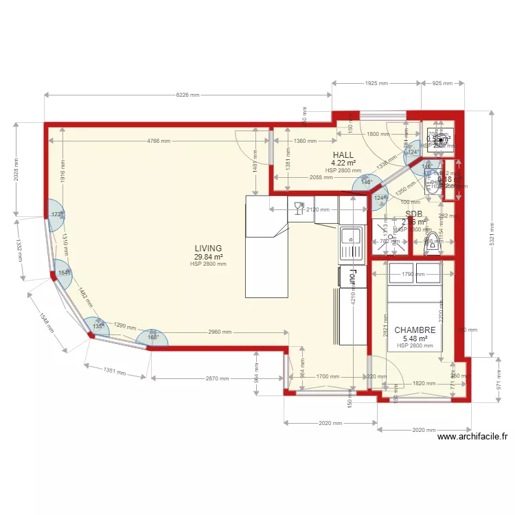
FLAT GAUCHE SITUATION PROJETEE LIT 1200X2000 avec cuisine
Plan de 6 pièces et 43 m²

Description
Restauration de 2 flatsn
Détails du plan
- Plan commencé le 23/12/2025 à 10:03 par marique
- Modifié le 23/12/2025 à 10:03 par marique
- Partage : Utilisation
Mots clés
Liste des pièces
- HALL
- Chambre
- LIVING
- SDB
Liste des objets
| Nom de l'objet | Nombre |
|---|---|
| Bar | 1 |
| Évier 1 bac avec meuble | 1 |
| Four | 1 |
| Lave linge hublot | 1 |
| Lave vaisselle 12 couverts | 1 |
| Lit double standard | 1 |
| Meuble cuisine 1 porte | 2 |
| Meuble cuisine 3 tiroirs | 1 |
| Meuble cuisine coin bas | 1 |
| Meuble lavabo intégré | 1 |
| Receveur douche extra plat | 1 |
| WC suspendu | 1 |
Lien vers ce plan
Lien pour partager le plan FLAT GAUCHE SITUATION PROJETEE LIT 1200X2000 avec cuisine
Image du plan
Copier et coller le code ci dessous
Partagez ce plan
Vous aimez ce plan ?
Cliquez sur J'aime et gagnez des fonctionnalités
Plans de 6 pièces et de 40 à 50 m2
Voir tout les plans de 6 pièces et de 40 à 50 m2
Plans de 6 pièces
Voir tout les plans de 6 pièces
Plans de 40 à 50 m2
Voir tout les plans de 40 à 50 m2