EIFFAGE CHANTIER MEYZIEU
Plan de

Détails du plan
- Plan commencé le 04/06/2025 à 16:54 par aca69780
- Modifié le 08/10/2025 à 16:17 par aca69780
- Partage : Utilisation
Mots clés
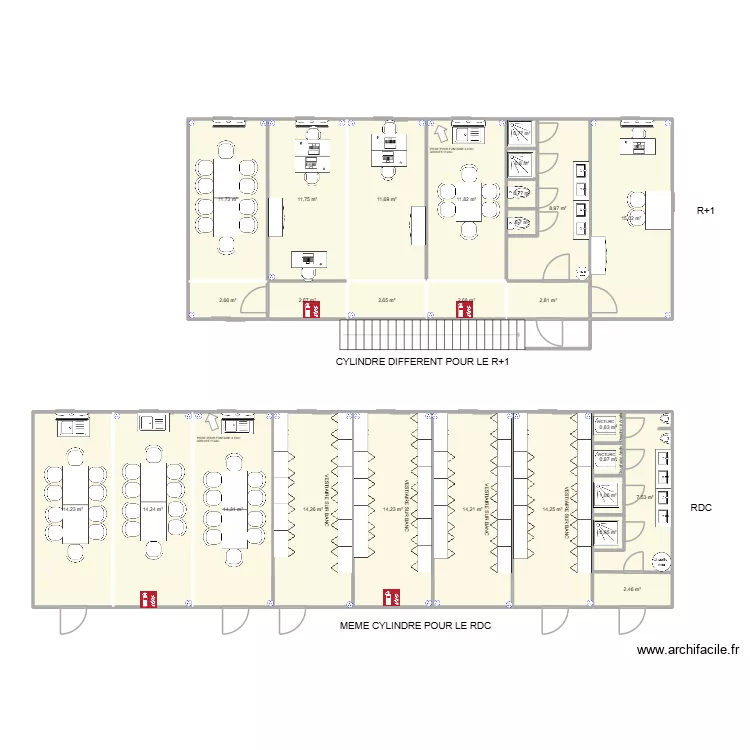
Liste des pièces
Aucune pièce n'a été créé sur ce plan.
Liste des objets
| Nom de l'objet | Nombre |
|---|---|
| Texte | 14 |
| Armoire | 4 |
| Armoire portes battantes | 3 |
| Armoire portes pliantes | 40 |
| Bureau 100 X 50 cm | 6 |
| Chaise | 48 |
| Chauffe eau | 2 |
| Climatiseur Split interieur | 6 |
| Escalier droit | 1 |
| Évier 1 bac avec meuble | 4 |
| Extincteur | 4 |
| Flêche | 2 |
| Meuble 2 lavabos | 4 |
| Prise | 34 |
| Receveur douche | 4 |
| Table à langer | 2 |
| Table de bureau | 10 |
| Urinoir | 2 |
| WC standard | 2 |
Lien vers ce plan
Lien pour partager le plan EIFFAGE CHANTIER MEYZIEU
Image du plan
Copier et coller le code ci dessous
Partagez ce plan
Vous aimez ce plan ?
Cliquez sur J'aime et gagnez des fonctionnalités