GRENADIERS Réno 2
Plan de

Détails du plan
- Plan commencé le 24/03/2026 à 06:57 par Socrat
- Modifié le 24/03/2026 à 15:29 par Socrat
- Partage : Utilisation
Mots clés
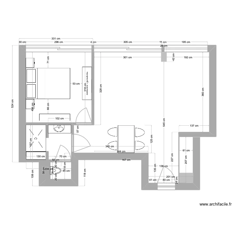
Liste des pièces
Aucune pièce n'a été créé sur ce plan.
Liste des objets
| Nom de l'objet | Nombre |
|---|---|
| Armoire - penderie 150 cm | 1 |
| Armoire - penderie 200 cm | 1 |
| Etagère redimenssionnable | 1 |
| Lavabo | 1 |
| Lit standard 140 x 200 cm | 1 |
| Plan de travail | 1 |
| Poteau béton | 2 |
| Receveur douche extra plat | 1 |
| Table 4 - 6 pers. 80 x 125 cm | 1 |
| Table de chevet | 2 |
| WC suspendu | 1 |
Lien vers ce plan
Lien pour partager le plan GRENADIERS Réno 2
Image du plan
Copier et coller le code ci dessous
Partagez ce plan
Vous aimez ce plan ?
Cliquez sur J'aime et gagnez des fonctionnalités