KIOSQUE LGM
Plan de

Description
REMPLACEMENT DES KIOSQUES ACTUELS PAR DES PREFABRIQUES TYPE AGECO
Détails du plan
- Plan commencé le 02/09/2025 à 15:28 par PATRICEVIRIN
- Modifié le 02/09/2025 à 15:28 par PATRICEVIRIN
- Partage : Lecture
Mots clés
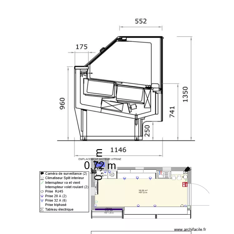
Liste des pièces
Aucune pièce n'a été créé sur ce plan.
Liste des objets
| Nom de l'objet | Nombre |
|---|---|
| Légende | 1 |
| Bar | 1 |
| Caméra de surveillance | 2 |
| Chaise | 2 |
| Climatiseur Split interieur | 1 |
| Congélateur armoire 200 L | 1 |
| Etagère redimenssionnable | 4 |
| Évier 1 bac avec meuble | 1 |
| Extincteur | 1 |
| Interrupteur va et vient | 1 |
| Interrupteur volet roulant | 2 |
| Poubelle | 1 |
| Prise RJ45 | 1 |
| Prise 20 A | 2 |
| Prise 32 A | 6 |
| Prise triphasé | 1 |
| Réfrigérateur | 1 |
| Refrigerateur congelateur | 1 |
| Tableau électrique | 1 |
| VOLET ROULANT | 3 |
Lien vers ce plan
Lien pour partager le plan KIOSQUE LGM
Image du plan
Copier et coller le code ci dessous
Partagez ce plan
Vous aimez ce plan ?
Cliquez sur J'aime et gagnez des fonctionnalités