de panne etage Version definitive à realiser V2
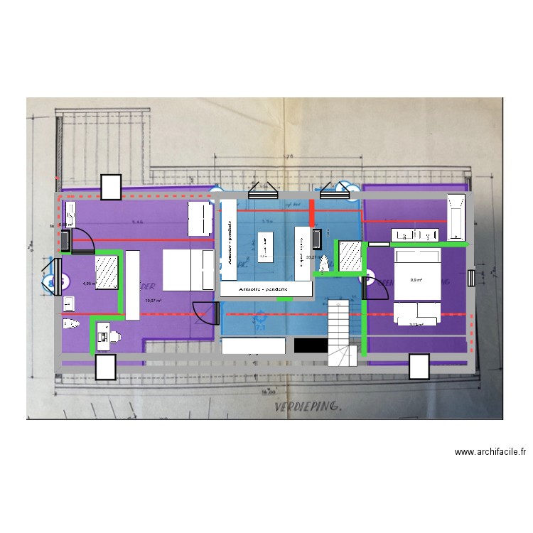
Plan de 7 pièces et 44 m²

Description
murs existants et mur à construire
Détails du plan
- Plan commencé le 26/11/2025 à 16:55 par GPVBR
- Modifié le 02/12/2025 à 07:57 par GPVBR
- Partage : Utilisation
Mots clés
Liste des pièces
Liste des objets
| Nom de l'objet | Nombre |
|---|---|
| Armoire | 2 |
| Armoire - penderie 200 cm | 4 |
| Baignoire rectangulaire | 1 |
| Bureau 100 X 50 cm | 1 |
| Cabine douche | 2 |
| Canapé 2 places | 2 |
| Cheminée | 2 |
| Escalier quart tournant | 1 |
| Fenêtre de toit | 3 |
| Lit King Size | 1 |
| Lit queen size | 1 |
| Meuble 1 lavabo integré | 1 |
| Meuble 2 lavabos | 1 |
| Téléviseur avec meuble bas | 1 |
| WC petite taille | 2 |
Lien vers ce plan
Lien pour partager le plan de panne etage Version definitive à realiser V2
Image du plan
Copier et coller le code ci dessous
Partagez ce plan
Vous aimez ce plan ?
Cliquez sur J'aime et gagnez des fonctionnalités
Plans de 7 pièces et de 40 à 50 m2
Voir tout les plans de 7 pièces et de 40 à 50 m2
Plans de 7 pièces
Voir tout les plans de 7 pièces
Plans de 40 à 50 m2
Voir tout les plans de 40 à 50 m2