
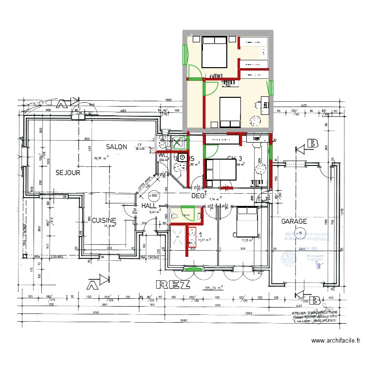
Projet d'extension d'environ 30 m2 pour créer 2 chambres, 1 buanderie et déplacer une sde
| Nom de l'objet | Nombre |
|---|---|
| Armoire - penderie 200 cm | 4 |
| Bibliothèque | 3 |
| Fauteuil crapaud | 2 |
| Lave main | 1 |
| Prise | 1 |
| Receveur douche extra plat | 1 |
| Sèche linge | 1 |
| WC suspendu | 2 |
Lien pour partager le plan extension CGI
Copier et coller le code ci dessous
Cliquez sur J'aime et gagnez des fonctionnalités
Voir tout les plans de 0 pièce et de 30 à 40 m2
Voir tout les plans de 0 pièce
Voir tout les plans de 30 à 40 m2