alex prjet def n°decembre
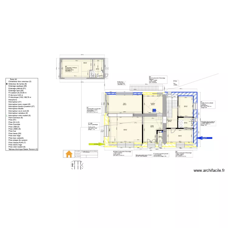
Plan de 26 et 268 m²

Détails du plan
- Plan commencé le 19/12/2025 à 12:55 par pierreopbat
- Modifié le 26/01/2026 à 16:07 par pierreopbat
- Partage : Utilisation
Mots clés
Liste des pièces
- WC 2
- Palier bas
- Buanderie
- Entrée
- Salon
- tremie
- Trémie
- loc technique
- Terrasse
Liste des objets
Lien vers ce plan
Lien pour partager le plan alex prjet def n°decembre
Image du plan
Copier et coller le code ci dessous
Partagez ce plan
Vous aimez ce plan ?
Cliquez sur J'aime et gagnez des fonctionnalités
Plans de 26 pièces
Voir tout les plans de 26 pièces
Plans de 260 à 280 m2
Voir tout les plans de 260 à 280 m2