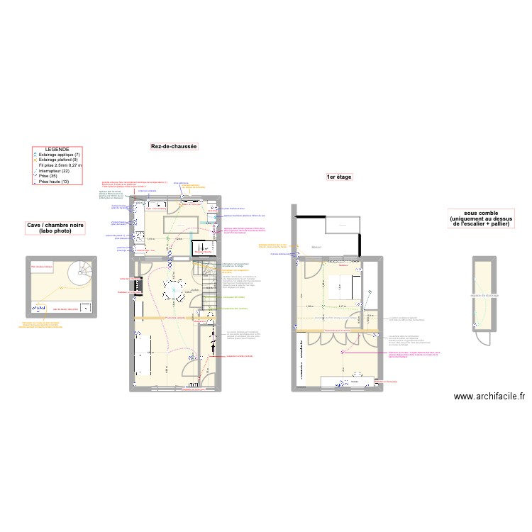
Plan maison - plan des prises et des interrupteurs
Plan de

Détails du plan
- Plan commencé le 30/09/2025 à 12:52 par JDruelle
- Modifié le 13/11/2025 à 22:10 par JDruelle
- Partage : Utilisation
Mots clés
Liste des pièces
Aucune pièce n'a été créé sur ce plan.
Liste des objets
| Nom de l'objet | Nombre |
|---|---|
| Texte | 33 |
| Légende | 1 |
| Armoire - penderie 150 cm | 2 |
| Bar | 2 |
| Buffet | 1 |
| Canapé 3 places | 1 |
| Chaise | 5 |
| Cheminée | 1 |
| Eclairage applique | 5 |
| Eclairage plafond | 9 |
| Escalier colimaçon | 2 |
| Escalier quart tournant | 1 |
| Évier 1 bac | 1 |
| Evier 1 vasque | 1 |
| Fenêtre de toit | 2 |
| Interrupteur | 21 |
| Lave linge hublot | 1 |
| Lit double standard | 1 |
| Meuble 1 lavabo integré | 1 |
| Meuble colonne | 1 |
| Meuble tiroir | 1 |
| Plan de travail | 6 |
| Plaque induction 4 foyers | 1 |
| Prise | 36 |
| Prise haute | 13 |
| Radiateur en fonte 2350 W ( 110 W / élément ) | 5 |
| Receveur douche | 1 |
| Table basse | 1 |
| Velo | 1 |
| WC standard | 1 |
Lien vers ce plan
Lien pour partager le plan Plan maison - plan des prises et des interrupteurs
Image du plan
Copier et coller le code ci dessous
Partagez ce plan
Vous aimez ce plan ?
Cliquez sur J'aime et gagnez des fonctionnalités