Nogentil 204 alter général
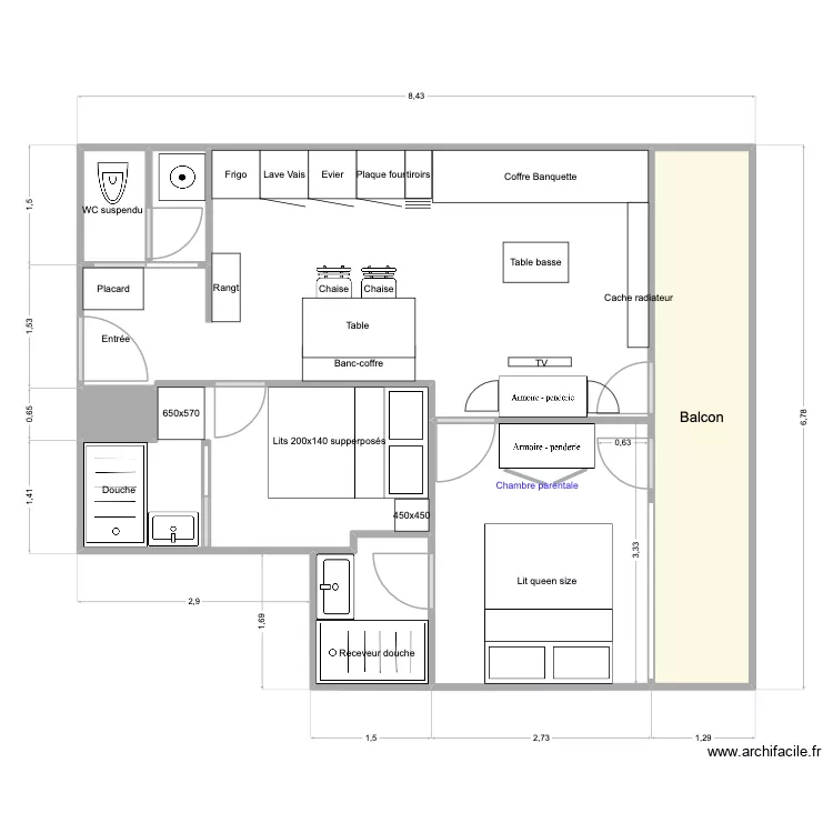
Plan de 6 pièces et 48 m²

Détails du plan
- Plan commencé le 23/02/2026 à 07:36 par 120R
- Modifié le 23/02/2026 à 07:36 par 120R
- Partage : Utilisation
Mots clés
Liste des pièces
- Balcon
Liste des objets
| Nom de l'objet | Nombre |
|---|---|
| Texte | 2 |
| Armoire - penderie 150 cm | 2 |
| Chaise | 2 |
| Lave linge hublot | 1 |
| Lit double standard | 1 |
| Lit queen size | 1 |
| Meuble 1 lavabo integré | 2 |
| Meuble cuisine 1 porte | 4 |
| Meuble cuisine 3 tiroirs | 1 |
| Quart de cercle | 2 |
| Receveur douche | 2 |
| Rectangle | 4 |
| Table basse | 6 |
| WC suspendu | 1 |
Lien vers ce plan
Lien pour partager le plan Nogentil 204 alter général
Image du plan
Copier et coller le code ci dessous
Partagez ce plan
Vous aimez ce plan ?
Cliquez sur J'aime et gagnez des fonctionnalités
Plans de 6 pièces et de 45 à 55 m2
Voir tout les plans de 6 pièces et de 45 à 55 m2
Plans de 6 pièces
Voir tout les plans de 6 pièces
Plans de 45 à 55 m2
Voir tout les plans de 45 à 55 m2