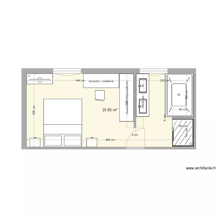
Chambre V3
Plan de

Description
Chambre avec déplacement cloison salle de bain 20cm à gagner
Détails du plan
- Plan commencé le 07/03/2024 à 17:26 par bleutetra
- Modifié le 08/03/2024 à 17:57 par bleutetra
- Partage : Lecture
Mots clés
Liste des pièces
Aucune pièce n'a été créé sur ce plan.
Liste des objets
| Nom de l'objet | Nombre |
|---|---|
| Armoire - penderie 150 cm | 2 |
| Baignoire rectangulaire | 1 |
| Cabine douche | 1 |
| Lit queen size | 1 |
| Meuble 2 lavabos | 1 |
| Meuble colonne | 1 |
| Table de chevet | 2 |
| Téléviseur avec meuble | 1 |
Lien vers ce plan
Lien pour partager le plan Chambre V3
Image du plan
Copier et coller le code ci dessous
Partagez ce plan
Vous aimez ce plan ?
Cliquez sur J'aime et gagnez des fonctionnalités