PLANS MONIQUE
Plan de

Détails du plan
- Plan commencé le 02/10/2025 à 17:04 par TITILADEBROUILLE
- Modifié le 09/10/2025 à 12:24 par TITILADEBROUILLE
- Partage : Utilisation
Mots clés
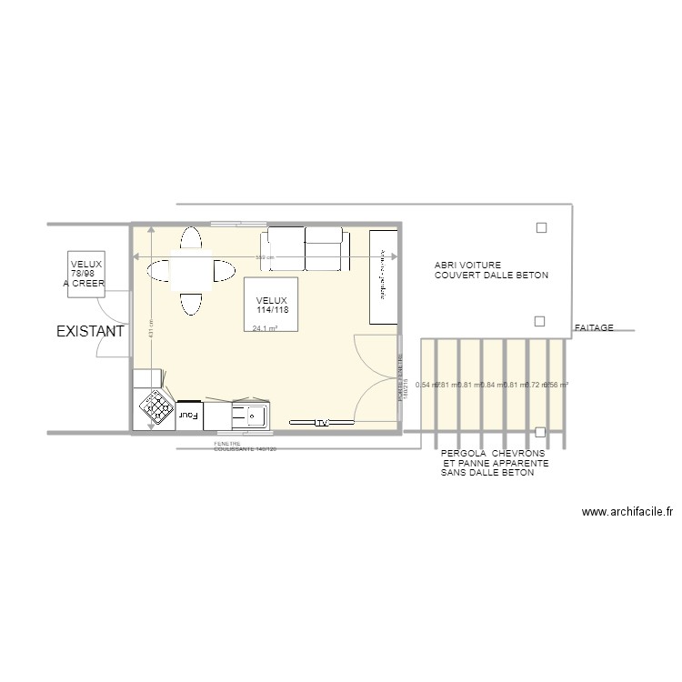
Liste des pièces
Aucune pièce n'a été créé sur ce plan.
Liste des objets
| Nom de l'objet | Nombre |
|---|---|
| Texte | 10 |
| Canapé 2 places | 1 |
| Évier 1 bac avec meuble | 1 |
| Four | 1 |
| Meuble cuisine 1 porte | 1 |
| Meuble cuisine 1 tiroir 2 portes | 1 |
| Meuble cuisine 3 tiroirs | 1 |
| Plaque gaz avec meuble | 1 |
| Rectangle | 5 |
| Table carré 4 pers. 90 x 90 cm | 1 |
| Téléviseur | 1 |
Lien vers ce plan
Lien pour partager le plan PLANS MONIQUE
Image du plan
Copier et coller le code ci dessous
Partagez ce plan
Vous aimez ce plan ?
Cliquez sur J'aime et gagnez des fonctionnalités