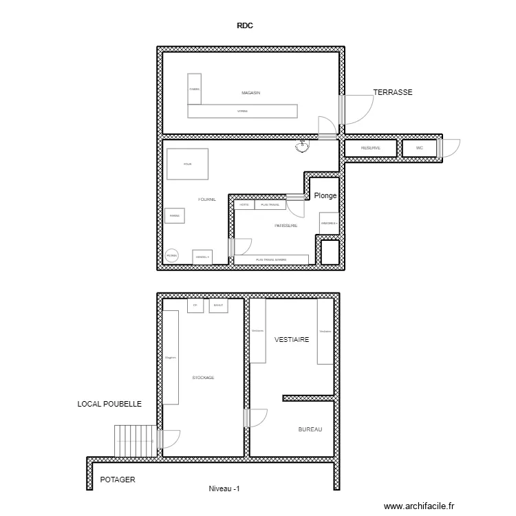
Boulangerie MOnguyon
Plan de

Détails du plan
- Plan commencé le 23/07/2024 à 09:32 par Nico AMILLET
- Modifié le 25/07/2024 à 09:34 par Nico AMILLET
- Partage : Utilisation
Mots clés
Liste des pièces
Aucune pièce n'a été créé sur ce plan.
Liste des objets
| Nom de l'objet | Nombre |
|---|---|
| Texte | 8 |
| Cercle | 1 |
| Escalier droit | 1 |
| Lavabo | 1 |
| Rectangle | 14 |
Lien vers ce plan
Lien pour partager le plan Boulangerie MOnguyon
Image du plan
Copier et coller le code ci dessous
Partagez ce plan
Vous aimez ce plan ?
Cliquez sur J'aime et gagnez des fonctionnalités