EIFFAGE CHANTIER ECLUSE CNR VAUGRIS
Plan de

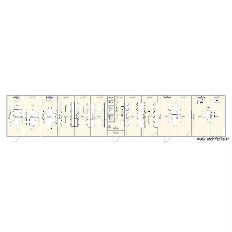
Détails du plan
- Plan commencé le 08/01/2025 à 11:49 par aca69780
- Modifié le 22/01/2025 à 09:47 par aca69780
- Partage : Utilisation
Mots clés
Liste des pièces
Aucune pièce n'a été créé sur ce plan.
Liste des objets
| Nom de l'objet | Nombre |
|---|---|
| Armoire portes battantes | 2 |
| Armoire portes pliantes | 30 |
| Bureau 100 X 50 cm | 2 |
| Chaise | 46 |
| Chauffe eau | 1 |
| Climatiseur Split interieur | 4 |
| Etagère redimenssionnable | 10 |
| Évier 1 bac avec meuble | 2 |
| Meuble 2 lavabos | 2 |
| Receveur douche | 2 |
| Table de bureau | 9 |
| WC standard | 2 |
Lien vers ce plan
Lien pour partager le plan EIFFAGE CHANTIER ECLUSE CNR VAUGRIS
Image du plan
Copier et coller le code ci dessous
Partagez ce plan
Vous aimez ce plan ?
Cliquez sur J'aime et gagnez des fonctionnalités