Maison St Romain RDC chauffage
Plan de

Description
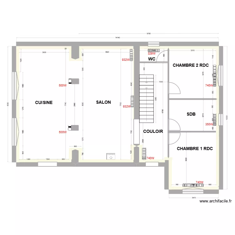
PLAN RDC
Détails du plan
- Plan commencé le 22/03/2026 à 09:49 par AbdelFHV42
- Modifié le 30/03/2026 à 20:50 par AbdelFHV42
- Partage : Utilisation
Mots clés
Liste des pièces
Aucune pièce n'a été créé sur ce plan.
Liste des objets
| Nom de l'objet | Nombre |
|---|---|
| Texte | 7 |
| Escalier droit | 2 |
| Poêle à bois rectangulaire | 1 |
| Radiateur en fonte 2350 W ( 156 W / élément ) | 9 |
Lien vers ce plan
Lien pour partager le plan Maison St Romain RDC chauffage
Image du plan
Copier et coller le code ci dessous
Partagez ce plan
Vous aimez ce plan ?
Cliquez sur J'aime et gagnez des fonctionnalités