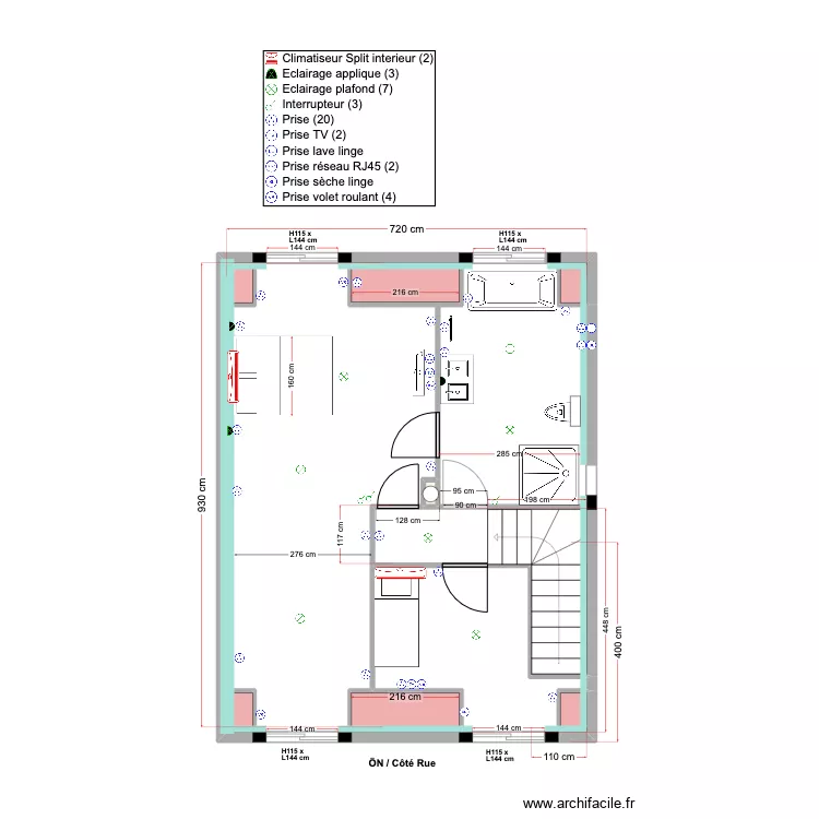
Etage DRAVEIL 13 06 2025
Plan de

Détails du plan
- Plan commencé le 13/06/2025 à 09:44 par erdal93
- Modifié le 14/06/2025 à 13:08 par erdal93
- Partage : Utilisation
Mots clés
Liste des pièces
Aucune pièce n'a été créé sur ce plan.
Liste des objets
| Nom de l'objet | Nombre |
|---|---|
| Texte | 5 |
| Légende | 1 |
| Baignoire îlot rectangulaire | 1 |
| Cercle | 1 |
| Climatiseur Split interieur | 2 |
| Eclairage applique | 3 |
| Eclairage plafond | 7 |
| Escalier quart tournant | 1 |
| Interrupteur | 3 |
| Lit 1 pers | 1 |
| Lit queen size | 1 |
| Meuble 2 lavabos | 1 |
| Prise | 20 |
| Prise lave linge | 1 |
| Prise réseau RJ45 | 2 |
| Prise sèche linge | 1 |
| Prise TV | 2 |
| Prise volet roulant | 4 |
| Receveur douche | 1 |
| Rectangle | 25 |
| Sèche-serviettes électrique à inertie 1000 W | 1 |
| Téléviseur avec meuble | 1 |
| WC suspendu | 1 |
Lien vers ce plan
Lien pour partager le plan Etage DRAVEIL 13 06 2025
Image du plan
Copier et coller le code ci dessous
Partagez ce plan
Vous aimez ce plan ?
Cliquez sur J'aime et gagnez des fonctionnalités