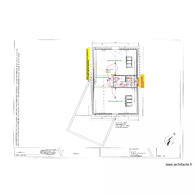
Plan électrique JÖST - COMBLES 25/08/2025
Plan de

Détails du plan
- Plan commencé le 25/08/2025 à 22:53 par isacreages
- Modifié le 01/09/2025 à 18:55 par isacreages
- Partage : Utilisation
Mots clés
Liste des pièces
Aucune pièce n'a été créé sur ce plan.
Liste des objets
| Nom de l'objet | Nombre |
|---|---|
| Texte | 7 |
| Cercle | 1 |
| Eclairage applique | 2 |
| Eclairage spot | 5 |
| Interrupteur | 3 |
| Interrupteur bouton poussoir | 2 |
| Interrupteur va et vient | 2 |
| Prise | 20 |
| Prise haute | 2 |
| Prise réseau RJ45 | 3 |
| Prise volet roulant | 3 |
| Rectangle | 2 |
| Triangle | 2 |
Lien vers ce plan
Lien pour partager le plan Plan électrique JÖST - COMBLES 25/08/2025
Image du plan
Copier et coller le code ci dessous
Partagez ce plan
Vous aimez ce plan ?
Cliquez sur J'aime et gagnez des fonctionnalités