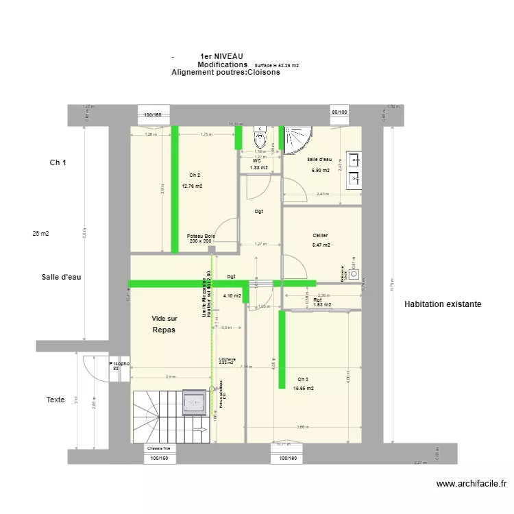
Alignement Poutres:Cloisons
Plan de

Détails du plan
- Plan commencé le 05/02/2024 à 19:57 par Schel
- Modifié le 05/02/2024 à 19:57 par Schel
- Partage : Utilisation
Mots clés
Liste des pièces
Aucune pièce n'a été créé sur ce plan.
Liste des objets
| Nom de l'objet | Nombre |
|---|---|
| Texte | 34 |
| Cabine douche quart de cercle | 1 |
| Cercle | 2 |
| Escalier demi tournant | 1 |
| Flêche | 1 |
| Meuble 2 lavabos | 1 |
| Rectangle | 1 |
| Tapis | 1 |
| WC standard | 1 |
Lien vers ce plan
Lien pour partager le plan Alignement Poutres:Cloisons
Image du plan
Copier et coller le code ci dessous
Partagez ce plan
Vous aimez ce plan ?
Cliquez sur J'aime et gagnez des fonctionnalités