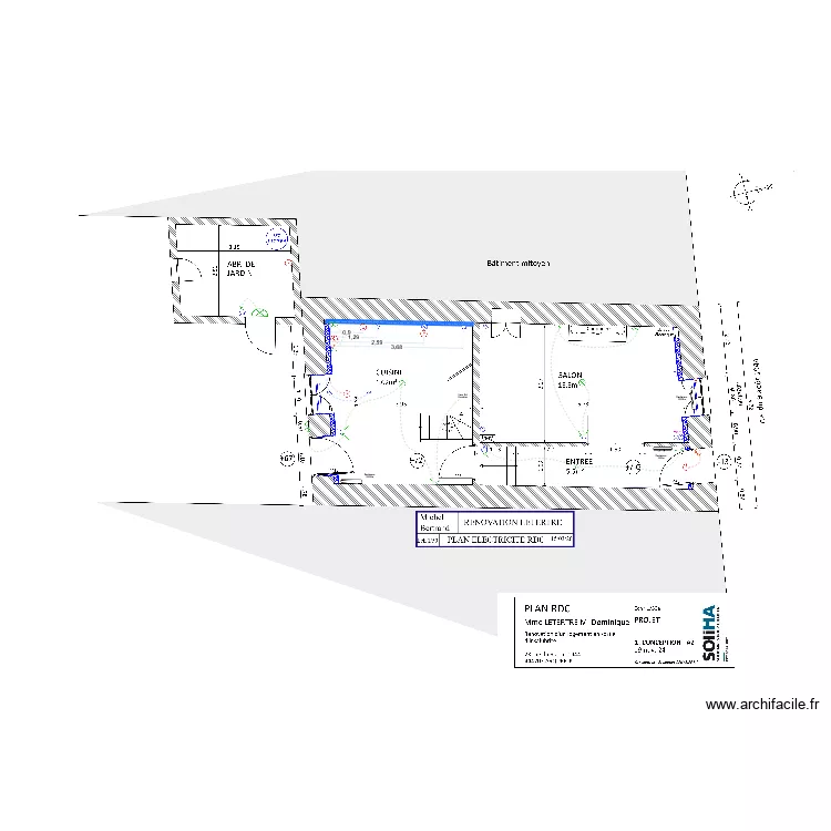
LETERTRE PLAN ELEC RDC
Plan de

Détails du plan
- Plan commencé le 26/02/2026 à 09:52 par colas2975
- Modifié le 25/03/2026 à 16:06 par colas2975
- Partage : Utilisation
Mots clés
Liste des pièces
Aucune pièce n'a été créé sur ce plan.
Liste des objets
| Nom de l'objet | Nombre |
|---|---|
| Texte | 4 |
| Eclairage applique | 5 |
| Eclairage plafond | 3 |
| Prise | 9 |
| Prise four | 1 |
| Prise haute | 5 |
| Prise lave linge | 1 |
| Prise lave vaisselle | 1 |
| Prise plaque de cuisson | 1 |
| Prise réseau RJ45 | 1 |
| Prise TV | 1 |
| Prise volet roulant | 1 |
| Radiateur radiant 1000W | 3 |
| Rectangle | 4 |
| Sonnerie | 1 |
| VMC bouche d'extraction | 1 |
Lien vers ce plan
Lien pour partager le plan LETERTRE PLAN ELEC RDC
Image du plan
Copier et coller le code ci dessous
Partagez ce plan
Vous aimez ce plan ?
Cliquez sur J'aime et gagnez des fonctionnalités