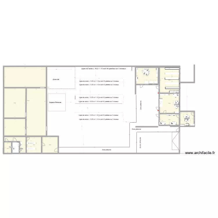
Plan des racks
Plan de

Détails du plan
- Plan commencé le 01/09/2025 à 22:43 par RESTSOS DU COEUR 02
- Modifié le 02/09/2025 à 11:17 par RESTSOS DU COEUR 02
- Partage : Utilisation
Mots clés
Liste des pièces
Aucune pièce n'a été créé sur ce plan.
Liste des objets
| Nom de l'objet | Nombre |
|---|---|
| Texte | 6 |
| Armoire - penderie 150 cm | 2 |
| Armoire portes coulissantes | 11 |
| Bureau rectangulaire 140 X 80 cm | 4 |
| Bureau rectangulaire 180 X 80 cm | 5 |
| Etagère redimenssionnable | 5 |
| Meuble 1 lavabo integré | 1 |
| Meuble 2 lavabos | 1 |
| Poteau béton | 2 |
| Rectangle | 1 |
| Table basse | 4 |
| Table de bureau | 5 |
| Urinoir | 1 |
| WC standard | 2 |
Lien vers ce plan
Lien pour partager le plan Plan des racks
Image du plan
Copier et coller le code ci dessous
Partagez ce plan
Vous aimez ce plan ?
Cliquez sur J'aime et gagnez des fonctionnalités