20260325 Projet Rénovation Sud Mury
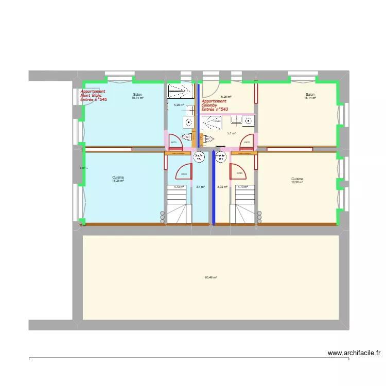
Plan de 26 et 311 m²

Description
25/03 NOUVELLES COTES POSEES
13 février Portes en face escalier Etage à 70 au lieu de 80
13 janvier axe des wc
15 DECEMBRE - Moins 2 ponts thermiques et agrandissements de 20cm de 2 cloisons abattues - cotation 2m60 et 1m20 ajoutées
+ dimension ouverture et retour Colomby dans prochaine version + DIMENSION PORTES PP80 ETAGE
modifications sur les gaines techniques
Détails du plan
- Plan commencé le 25/03/2026 à 16:02 par Carrichon Anne
- Modifié le 25/03/2026 à 16:02 par Carrichon Anne
- Partage : Utilisation
Mots clés
Liste des pièces
Liste des objets
Lien vers ce plan
Lien pour partager le plan 20260325 Projet Rénovation Sud Mury
Image du plan
Copier et coller le code ci dessous
Partagez ce plan
Vous aimez ce plan ?
Cliquez sur J'aime et gagnez des fonctionnalités
Plans de 26 pièces
Voir tout les plans de 26 pièces
Plans de 300 à 320 m2
Voir tout les plans de 300 à 320 m2