SCC CHANTTIER CLERMOND FERRAND
Plan de

Détails du plan
- Plan commencé le 12/07/2024 à 10:07 par aca69780
- Modifié le 12/07/2024 à 10:07 par aca69780
- Partage : Utilisation
Mots clés
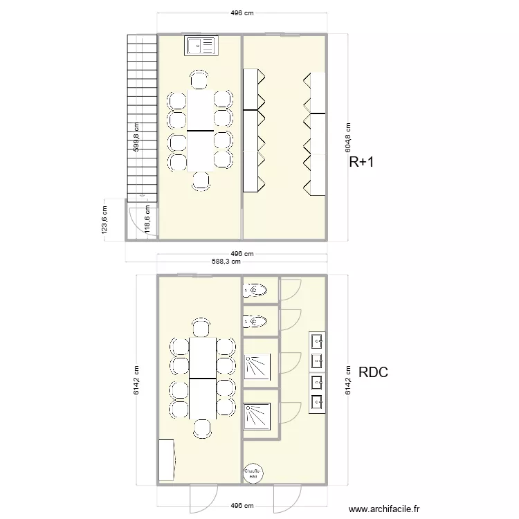
Liste des pièces
Aucune pièce n'a été créé sur ce plan.
Liste des objets
| Nom de l'objet | Nombre |
|---|---|
| Texte | 2 |
| Armoire portes battantes | 1 |
| Armoire portes pliantes | 6 |
| Chaise | 20 |
| Chauffe eau | 1 |
| Escalier droit | 1 |
| Évier 1 bac avec meuble | 1 |
| Meuble 2 lavabos | 2 |
| Receveur douche | 2 |
| Table de bureau | 4 |
| WC standard | 2 |
Lien vers ce plan
Lien pour partager le plan SCC CHANTTIER CLERMOND FERRAND
Image du plan
Copier et coller le code ci dessous
Partagez ce plan
Vous aimez ce plan ?
Cliquez sur J'aime et gagnez des fonctionnalités