Fournier RDC
Plan de 0 pièce et 0 m2.

Détails du plan
- Plan commencé le 14/11/2025 à 07:28 par FETELEC81
- Modifié le 20/11/2025 à 07:06 par FETELEC81
- Partage : Utilisation
Mots clés
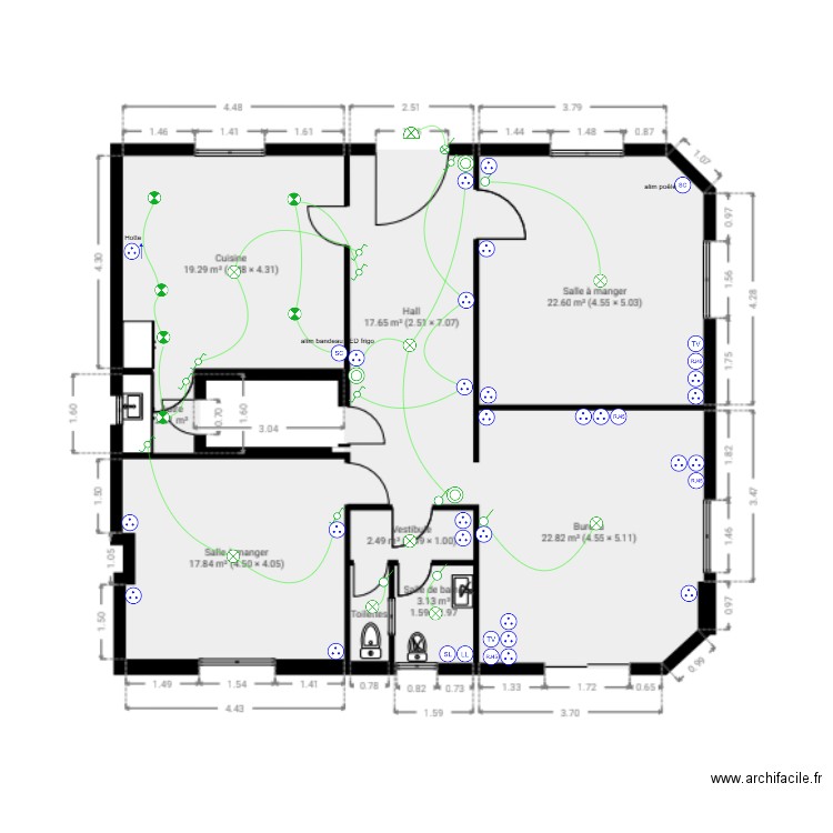
Liste des pièces
Aucune pièce n'a été créé sur ce plan.
Liste des objets
| Nom de l'objet | Nombre |
|---|---|
| Eclairage applique | 1 |
| Eclairage plafond | 8 |
| Eclairage spot | 6 |
| Interrupteur | 5 |
| Interrupteur avec voyant | 1 |
| Interrupteur bouton poussoir | 3 |
| Interrupteur va et vient | 8 |
| Prise | 25 |
| Prise haute | 1 |
| Prise lave linge | 1 |
| Prise réseau RJ45 | 4 |
| Prise sèche linge | 1 |
| Prise TV | 2 |
| Sortie de câble | 2 |
Lien vers ce plan
Lien pour partager le plan Fournier RDC
Image du plan
Copier et coller le code ci dessous
Partagez ce plan
Vous aimez ce plan ?
Cliquez sur J'aime et gagnez des fonctionnalités