chambre d\'hote
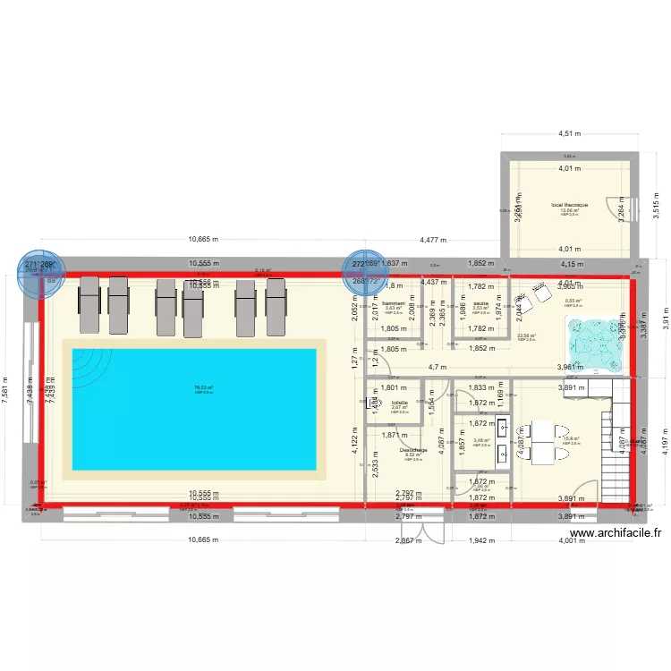
Plan de 21 et 155 m²

Détails du plan
- Plan commencé le 11/02/2026 à 16:35 par ROMAINberry
- Modifié le 09/03/2026 à 10:55 par ROMAINberry
- Partage : Utilisation
Mots clés
Liste des pièces
- toilette
- Desochage
- sauna
- hammam
- local thecnique
Liste des objets
| Nom de l'objet | Nombre |
|---|---|
| Chaise | 2 |
| Escalier droit | 1 |
| Meuble 2 lavabos | 1 |
| Meuble cuisine 1 tiroir 2 portes | 5 |
| Piscine 8 x 4 | 1 |
| Spa | 1 |
| Table 2 pers. 74 x 74 cm | 2 |
| Transat gris | 6 |
| WC suspendu | 1 |
Lien vers ce plan
Lien pour partager le plan chambre d\'hote
Image du plan
Copier et coller le code ci dessous
Partagez ce plan
Vous aimez ce plan ?
Cliquez sur J'aime et gagnez des fonctionnalités
Plans de 21 pièces
Voir tout les plans de 21 pièces
Plans de 150 à 170 m2
Voir tout les plans de 150 à 170 m2