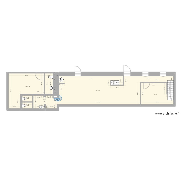
REZ DE JARDINS CHAZAY
Plan de

Détails du plan
- Plan commencé le 28/10/2025 à 18:49 par EtsTHEV
- Modifié le 28/10/2025 à 22:07 par EtsTHEV
- Partage : Lecture
Mots clés
Liste des pièces
Aucune pièce n'a été créé sur ce plan.
Liste des objets
| Nom de l'objet | Nombre |
|---|---|
| Chauffe eau | 1 |
| Escalier droit | 1 |
| Évier 1 bac avec meuble | 1 |
| Lavabo | 1 |
| Meuble lavabo intégré | 1 |
| WC petite taille | 1 |
| WC suspendu | 2 |
Lien vers ce plan
Lien pour partager le plan REZ DE JARDINS CHAZAY
Image du plan
Copier et coller le code ci dessous
Partagez ce plan
Vous aimez ce plan ?
Cliquez sur J'aime et gagnez des fonctionnalités