Menuiserie
Plan de 6 et 56 m²

Détails du plan
- Plan commencé le 25/03/2026 à 19:42 par MartinEippers
- Modifié le 25/03/2026 à 20:32 par MartinEippers
- Partage : Utilisation
Mots clés
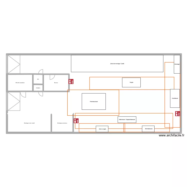
Liste des pièces
- Récolte aspiration
- WC
- Vestiaire
- Bureau
- Stockage panneaux
- Stockage bois massif
Liste des objets
| Nom de l'objet | Nombre |
|---|---|
| Extincteur | 3 |
| Rectangle | 14 |
Lien vers ce plan
Lien pour partager le plan Menuiserie
Image du plan
Copier et coller le code ci dessous
Partagez ce plan
Vous aimez ce plan ?
Cliquez sur J'aime et gagnez des fonctionnalités
Plans de 6 pièces et de 50 à 60 m2
Voir tout les plans de 6 pièces et de 50 à 60 m2
Plans de 6 pièces
Voir tout les plans de 6 pièces
Plans de 50 à 60 m2
Voir tout les plans de 50 à 60 m2